Categories
- Support & Resources (25)
- Pipes & Fittings (35)
- Valves & Pumps (70)
- Instruments & Tools (23)
- Equipment, Chemicals & Consumables (13)
Metalsin supplies SANS/SABS 664 ductile iron resilient-seal flanged gate valves with non rising spindle (NRS) for municipal waterworks. Key design features include:

Ductile iron NRS flanged resilient gate valves designed to SANS/SABS 664, FBE coating on both interior & exterior surfaces.

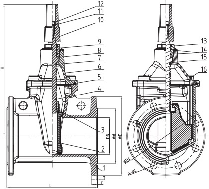
Typical drawing of SANS/SABS 664 non-rising stem (NRS) flanged gate valves. Flange ends drilling according to SANS/SABS 1123 PN10/16; Working pressure: PN10, PN16; Working temperature: 0°C~100°C.
| Part No. | Part Name | Material Spec. |
|---|---|---|
| 1 | Valve Body | EN-GJS-450-10 |
| 2 | Wedged Gate | EN-GJS-450-10+EPDM |
| 3 | Wedge Nut | Brass CW614N |
| 4 | Spindle | SS 304, SS 316 |
| 5 | Bonnet Gasket | EPDM/NBR |
| 6 | Bonnet | EN-GJS-450-10 |
| 7 | O-Ring | EPDM/NRB |
| 8 | Washer | PTFE |
| 9 | Lock Nut | Brass CW614N |
| 10 | Stem Cap | EN-GJS-450-10 |
| 11 | Flat Washer | SS 304 |
| 12 | Bolt | A2, SS304 |
| 13 | Ring Wiper | EPDM/NBR |
| 14 | O-Ring | NBR/EPDM |
| 15 | Washer | Brass CW614N |
| 16 | Bolt | A2, SS304 |
| DN | PN | L mm | H mm | D mm | D1 mm |
|---|---|---|---|---|---|
| 50 | 10/16 | 216 | 280 | 165 | 125 |
| 65 | 10/16 | 170 | 254 | 185 | 145 |
| 80 | 10/16 | 229 | 348 | 200 | 160 |
| 100 | 10/16 | 254 | 372 | 220 | 180 |
| 125 | 10/16 | 200 | 365 | 250 | 210 |
| 150 | 10/16 | 280 | 472 | 285 | 240 |
| 200 | 10 | 317 | 576 | 340 | 295 |
| 200 | 16 | 317 | 576 | 340 | 295 |
| 250 | 10 | 356 | 695 | 405 | 350 |
| 250 | 16 | 356 | 695 | 405 | 355 |
| 300 | 10 | 380 | 778 | 460 | 400 |
| 300 | 16 | 380 | 778 | 460 | 410 |
| DN | PN | d mm | C mm | T mm | n x Φl no. & mm |
|---|---|---|---|---|---|
| 50 | 10/16 | 99 | 19 | 3 | 4-Φ18 |
| 65 | 10/16 | 118 | 19 | 3 | 4-Φ19 |
| 80 | 10/16 | 132 | 19 | 3 | 8-Φ18 |
| 100 | 10/16 | 156 | 19 | 3 | 8-Φ18 |
| 125 | 10/16 | 190 | 19 | 3 | 8-Φ19 |
| 150 | 10/16 | 211 | 19 | 3 | 8-Φ22 |
| 200 | 10 | 266 | 20 | 3 | 8-Φ22 |
| 200 | 16 | 266 | 20 | 3 | 12-Φ22 |
| 250 | 10 | 319 | 22 | 3 | 12-Φ22 |
| 250 | 16 | 319 | 22 | 3 | 12-Φ26 |
| 300 | 10 | 370 | 24.5 | 4 | 12-Φ22 |
| 300 | 16 | 370 | 24.5 | 4 | 12-Φ26 |