Categories
- Support & Resources (31)
- Pipes & Fittings (35)
- Valves & Pumps (70)
- Instruments & Tools (23)
- Equipment, Chemicals & Consumables (25)
In large-scale long-distance water supply projects and complex drainage systems, air management and maintenance accessibility are equally critical. Metalsin provides the most highly integrated air management solution: the Double Orifice Combination Air Valve with a Built-in Isolation Mechanism.

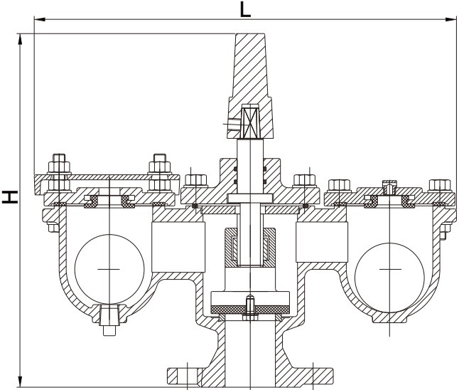
Ductile iron double-orifice combination air valves with built-in isolation mechanism
This product ingeniously integrates a high-capacity “kinetic air valve,” a high-precision “pressurized air release valve,” and a “vertical isolation gate valve” into a single valve body. This design not only significantly saves installation space but also achieves the core advantage of allowing safe maintenance without shutting down the main pipeline.
In contrast to the standard dual-chamber series, this air valve features an integrated isolation gate positioned between the two chambers. It utilizes a three-in-one integrated design, ensuring efficient coordination of all functional modules through precision casting and machining:
Metalsin’s double-orifice combination air valve with isolation gate achieves its superior protection through the following three stages:

Typical drawing for the double-orifice combination air valve with built-in isolation gate, flanged end, full port design.
Traditional air valve maintenance often requires the installation of a bulky separate isolation valve (such as a butterfly valve). Metalsin integrates this function directly into the body. By rotating the central valve stem, the internal gate moves downward to press against the bottom seat, effectively cutting off the physical connection between the main pipeline and the two upper exhaust chambers. Once the internal pressure is released, maintenance personnel can safely open the left and right covers to clean the floats or replace seals and lever mechanisms, completely eliminating the need to shut down the main pump station or drain the entire pipeline. This design eliminates the need for additional valves, flanges, fasteners, and gaskets, reducing construction difficulty and potential leakage points.
P-T & Standards: Working pressure: 16 bar. Hydrostatic shell test pressure: 24.0 bar; Hydrostatic sealing test pressure: 17.6 bar. Working temperature: -10°C~100°C. Design codes: EN 1074-4, AWWA C512. Epoxy coating code: AWWA C550, DIN 3476-1, EN 14901.
Material Specification: Body & Cover & Stem Cap: ductile iron ASTM A536 65-45-12, EN-GJS-450-10; Nipple & Plug: brass EN12165 CW603N; Float Ball: ABS; Seat Ring: EPDM; Stem: ss 304/316, bronze; Bolts & Nuts: A2 (TP304) / A4 (TP316).
| DN | L mm | H mm |
|---|---|---|
| 40 | 375 | 316 |
| 50 | 418 | 351 |
| 65 | 430 | 360 |
| 80 | 454 | 375 |
| 100 | 492 | 419 |
| 150 | 595 | 440 |
| 200 | 698 | 475 |
| 300 | 825 | 540 |
| Full Series of Air Valves | |
|---|---|
| Air Release/Venting Valve | Air/Vacuum Valve |
| Single-Body Combination | Plastic Combination Series |
| Dual-Chamber Combination | Combination w/t Isolation Gate |