Categories
- Support & Resources (25)
- Pipes & Fittings (35)
- Valves & Pumps (63)
- Instruments & Tools (23)
- Equipment, Chemicals & Consumables (13)

The coupling/socket joint repair clamp and it use with galvanized steel pipes.
Metalsin’s coupling joint repair clamp for steel pipes is specifically engineered for the rapid maintenance of small-diameter galvanized steel pipelines (up to DN100) manufactured to BS 1387 and BS 21 standards. Since these pipes are traditionally connected using threaded couplings or sockets, leaks at these junctions can disrupt entire networks. This ductile iron repair clamp features a specialized “wrap-around” design that fully encapsulates the leaking coupling, enabling a permanent, leak-proof seal while the system remains under pressure. This eliminates the need for costly downtime or the labor-intensive replacement of threaded fittings, providing a highly reliable and efficient repair solution for municipal and industrial water supply systems.

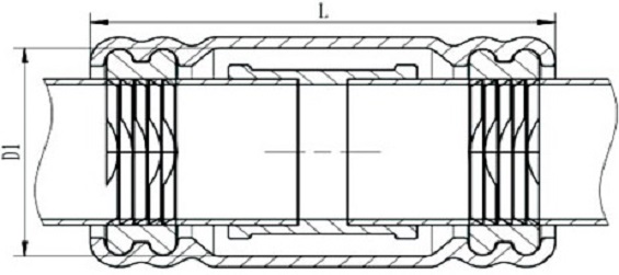
Technical drawing of coupling joint repair clamp for steel pipes.
| DN | O.D mm | D1 mm | L mm |
|---|---|---|---|
| 15 | 21.3 | 42 | 97 |
| 20 | 26.8 | 48 | 106 |
| 25 | 33.4 | 54 | 112 |
| 32 | 42.2 | 63 | 126 |
| 40 | 48.3 | 72 | 140 |
| 50 | 60.3 | 86 | 160 |
| 65 | 76.1 | 103 | 176 |
| 80 | 88.9 | 120 | 198 |
| 100 | 114.3 | 144 | 220 |